Page 266 - Night systems DOLI-NO22_3
        P. 266
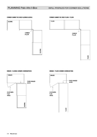
     PLANNING Palo Alto I-Box                          INFILL PROFILES FOR CORNER SOLUTIONS                                 INFILL PROFILES FOR CORNER SOLUTIONS                                    CORNER MODULE
          CORNER CANNOT BE USED SLIDING/SLIDING               CORNER CANNOT BE USED FLUSH / FLUSH                                SLIDING / SLIDING COMBINATIONS
           SLIDING                                             FLUSH                                                              SLIDING
                                                                                                                                                                                          FIXED HINGED
                                                                                                                                                                                          DOOR
                                CORNER                                                    CORNER                                                               INFILL PROFILE
                                PILLAR                                                    PILLAR
                                                   SLIDING
                                                                                                              FLUSH                                                                   SLIDING
          HINGED / SLIDING CORNER COMBINATIONS                HINGED / FLUSH CORNER COMBINATIONS                                 SLIDING / FLUSH COMBINATIONS
           HINGED                                              HINGED                                                             SLIDING
                                                                                      FIXED HINGED
                                   FIXED HINGED                                       DOOR                                                                                                 FIXED HINGED
                                   DOOR                                                                                                                                                    DOOR
                                                                                                                                                               INFILL PROFILE
          DOOR WITH                                           DOOR WITH
          FLAT                                                FLAT
          HINGE                                               HINGE
                                SLIDING
                                                                                   FLUSH
                                                                                                                                                                                       FLUSH
          264                                                                                                                                                                                                                       265





